Skip to main content

Sash Guillotine Glass Windows

Limitless Potential With Ação Suave

Bespoke Glazing Design & Installation Specialists

Ação Suave specialise in architectural and structural glass bespoke design in the UK, Channel Islands and abroad. We offer the complete package, from vision and concept, right through to design and the finished project. Our forward-thinking approach to today and the future of this industry allows Ação Suave to bring new ideas and concepts to life. Heated Glass, the use of fibreglass and a desire to remain ahead separate Ação Suave from our competition. Let us realise your vision today.

Modern & Innovative

Vertical Sliding Guillotine Windows

Our high-performance vertical sliding guillotine windows provide a new dimension in opening glass walls which adds space, accessibility and a unique mark on your home. Working with some of the world’s leading architects we provide complex and unique structural glazing systems, minimal frame doors, and architectural glazing. Increase the panoramic views from your home with seamless ascending and descending technology that allows panels to simply disappear.

Custom Guillotine Windows For Indoors & Outdoors

Our custom guillotine windows move vertically to open from top to bottom or vice versa to provide an innovative, functional, and contemporary window system. This seamless technology means that you can enjoy panoramic views with no obstructions, excellent ventilation and complete control over your window retraction and exposure. With a range of materials, colours, and applications available, we can create an impactful glazing system to complement your home.

Specialist Suppliers

Frameless Structural Glass Assembly

Our relationships with our specialist suppliers born from many years of trade have put us at the forefront of the glazing industry. Clients trust our ability to perform and with continued research and development, this is a key factor for us all moving forward.

Specialist Suppliers

Sleek Design

Our Guillotine System boasts a sleek design that complements modern architectural styles. Its clean lines and slim profile provide an elegant finish that enhances the overall appearance of a building. The guillotine is made with high-quality, carefully selected materials to ensure durability and longevity.

as-spain-house-lead-img-01
as-spain-house-lead-img-01

Limitless Customisation

Our guillotine system can be custom-made for architectural design or client requirements. The guillotine is available in various sizes, shapes, and configurations, allowing designers to create a unique and personalised look for their projects. The flexibility of the OTIIMA guillotine makes it an ideal choice for residential and commercial buildings.

Take a look at this demonstration!

Our guillotine’s movement is flawless and precise, thanks to its high-precision counterweight system and configuration of the structural design. The guillotine’s smooth and effortless movement provides a comfortable and enjoyable user experience. The OTIIMA guillotine’s flawless movement makes it an excellent addition to any architectural project, enhancing the building’s functionality and aesthetics.

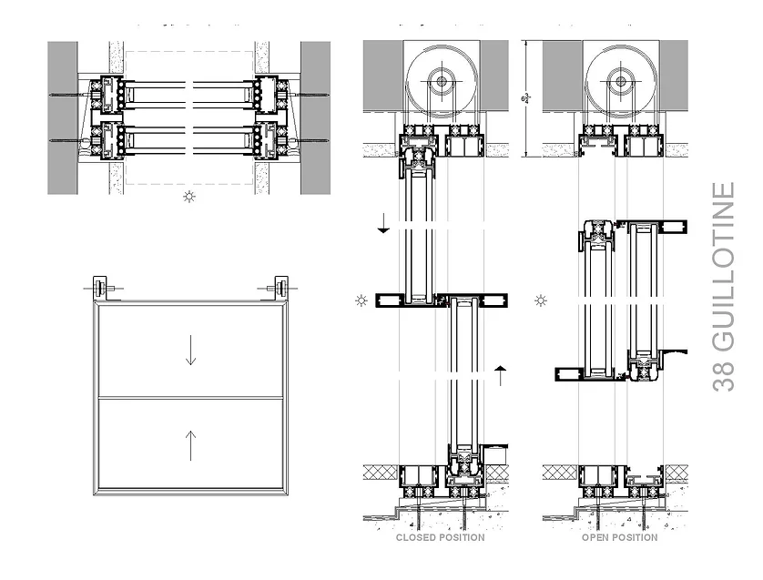
38 Guillotine

38 GUILLOTINE is OTIIMA’s vertical sliding window system that uses hidden counter-weights and pulleys to balance the mass of the operable panels. It is offered in one or more panels, one or more tracks and can be operated manually or motorized. Ascending or descending panels can be configured with fixed panels or vertical pocketing conditions.

38 GUILLOTINE is operated by a high-precision counterweight system, ensuring smooth and effortless movement. The guillotine is designed to retract and extend with minimal effort, making it easy to operate for people of all ages and abilities. The counterweight system is engineered to precisely control the guillotine’s movement, ensuring that it retracts and extends accurately every time.

The system is configured to distribute the weight of the guillotine evenly, reducing stress on the framework and prolonging its lifespan. The structural system is also designed to provide excellent thermal insulation and soundproofing, making the OTIIMA guillotine an energy-efficient and quiet solution for any building.

Available configurations include fixed windows, multi-panel and sliding windows/doors (including pocket configurations).

38 GUILLOTINE Maximum Size:

Domestic Standard Insulated Glass = 100″ x 144″

Domestic Jumbo Insulated Glass = 126″ x 268″

European Insulated Glass = 126″ x 295″

Work With Us…

Bespoke Glazing Designs

With top technology and architecture design, our bespoke glazing designs can make your design visions a reality.

High-End Residential

The ability to supply large glass finished to very high standards with specifications and low UV/UW values enhances your property.

Unique Architectural Design

Pushing that envelope past its limits further gives architects, clients & designers more glazing and structures to greater heights.

For help with your next project, contact us today.

Our Projects

Creating Unique
Environments

Stunning backdrops in dream locations deserve systems and glass finishes worthy of their design and position. Discover some of our latest projects.
Design and Installation

Leading Structural and Architectural glazing company

Top technology & architecture design, minimal windows, glass doors and bespoke glazing designs.

Structural glass design

Our in-house design and structural calculations allows Ação Suave the flexibility to listen, contribute and find solutions in a shorter time scale.

Frameless structural glass assembly

Our relationships with our specialist suppliers born from many years of trade have put us at the forefront of the glazing industry. Clients trust our ability to perform and with continued research and development this is a key factor for us all moving forward.

Pioneering Architectural glass technology

Our forward thinking approach to today and to the future of this industry allows Ação Suave to bring new ideas and concepts to life. Heated Glass, the use of fibre glass and a desire to remain ahead separates Ação Suave from our competition.

Contemporary Technical Glass Solutions

Advanced materials fitted within our systems changes the way we can keep heat in our houses. Our partnership with leading suppliers puts Ação Suave ahead of the rest with just how big we can go. An exciting time ahead for us all.

Reasons to Work
With Ação Suave

Talented and qualified professionals

Vastly experienced in Structural and Architectural Glass system design installation

Each one of us has a great depth and knowledge of the glass and glazing industry. Years of experience working closely with architects, designers, developers and end users has taught us not only to listen but to assist. We have worked all over the UK, Europe, USA and as far as India. Those relationships are vital to Ação Suave because we want our clients to be comfortable in our ability to perform.

Custom Frameless Minimalist Glass Design Systems

Trusted Partners

Award winning Partners & friends.

Otiima - Much more than a window, are one of the leading providers of architectural minimal window systems in the world. Offering high quality and technological minimal frame systems to complete architectural design, all types of glass doors and minimal windows.

European Glass are always at the forefront of glass technology and supply. Forward thinking and pioneering attitudes along with M.Y.Glass Projects experience for developing revolutionary glass have put Ação Suave in an envious position with our competition.
wise-choice-logo-b

For help with your next project contact our team.

Working with some of the world's leading architects we provide complex and unique structural glazing systems, minimal frame doors, and architectural glazing throughout the UK.
Ação Suave - Architectural Glazing
Privacy Overview

This website uses cookies so that we can provide you with the best user experience possible. Cookie information is stored in your browser and performs functions such as recognising you when you return to our website and helping our team to understand which sections of the website you find most interesting and useful.